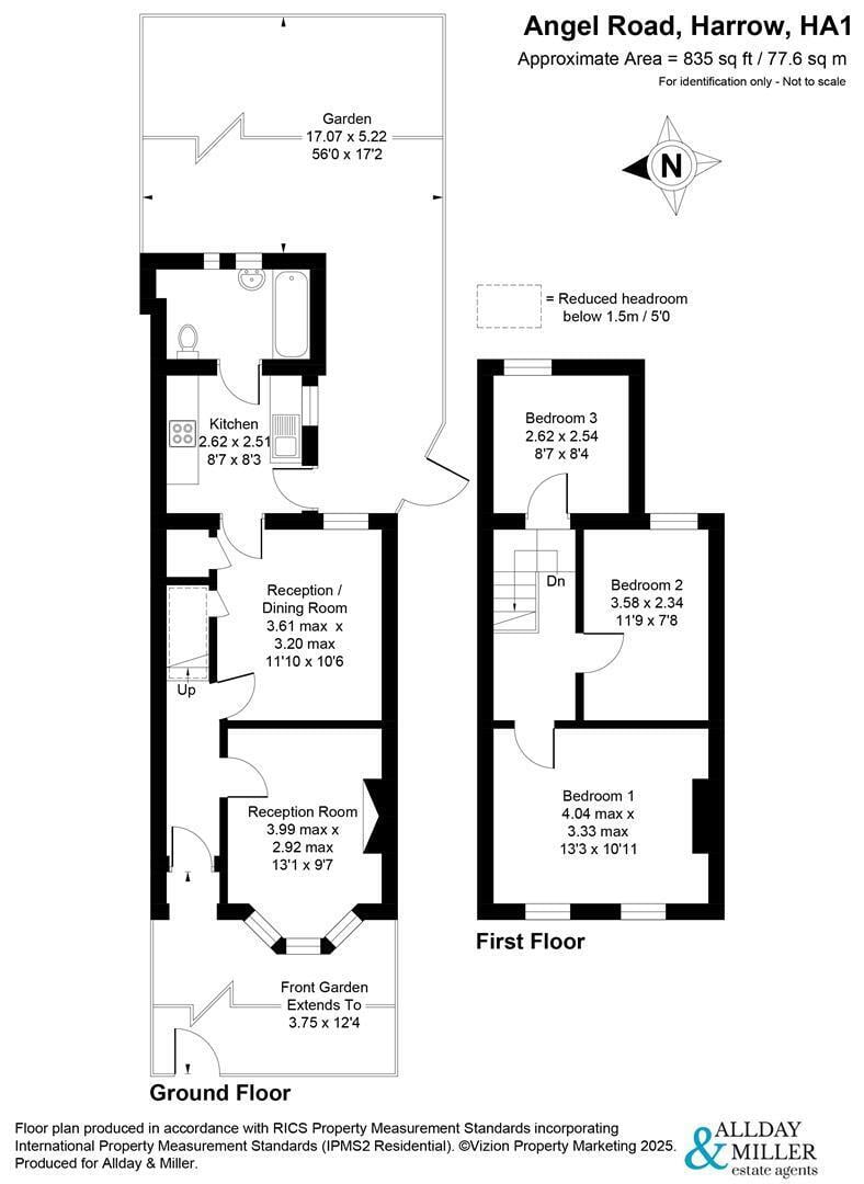
**NO DEPOSIT OPTION AVAILABLE FOR TENANTS. GREATER PROTECTION PROVIDED TO LANDLORDS (ask for details)** Nestled on the desirable Angel Road, Harrow, is this newly refurbished three-bedroom house which presents an excellent opportunity for families. Just a stone's throw from Harrow on The Hill Station and the bustling shopping centre, this property offers both convenience and comfort.
Upon entering, you will find a spacious bay fronted reception room that provides a warm and inviting atmosphere. The newly fitted smart kitchen is a highlight of the home, which leads to a modern bathroom. The property boasts three well-proportioned bedrooms situated on the first floor. This home and has been refurbished throughout with stylish grey carpets and contemporary finishes.
Located in the heart of HA1, Angel Road offers a vibrant urban living experience with easy access to local amenities and transportation links. This bustling neighborhood boasts a diverse range of dining options, cafes, and shopping opportunities, all within walking distance. Residents enjoy a community-oriented atmosphere, with parks and green spaces nearby for leisurely strolls. Excellent transport connections ensure quick commutes to central London and beyond, making Angel Road an ideal choice for those seeking convenience and connectivity























