Welcoming this beautiful extended two bedroom end of terrace home with a large rear garden over 100ft. An excellent opportunity for first time buyers & investors.
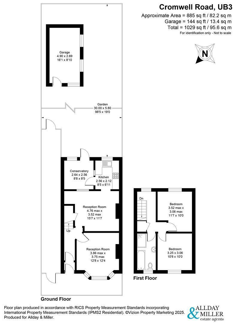
Spanning an impressive 1,029 square feet, the property features two inviting reception rooms, providing ample space for relaxation and entertaining guests, a well equipped fitted kitchen and a conservatory which provides access to the rear.
The first floor features two spacious double bedrooms, ideal for a small family or those seeking extra space. A well appointed bathroom completes this level.
To the rear enjoys a private rear garden, which is mainly laid to lawn. This outdoor space offers a wonderful opportunity for outdoor dining and entertainment.
Cromwell Road giving easy access to the Uxbridge road with its variety of local shops, takeaways, coffee shops and cafes. A number of bus/road links including the M40, M4 and M25 with its links to London and the Home Counties. Hayes Town Centre is just a short drive away with the Elizabeth Line, making the journey into Central London a breeze. The area is served by highly regarded schools in the local area including Wood End Park Academy , Botwell House Catholic school and Harlington secondary school.























