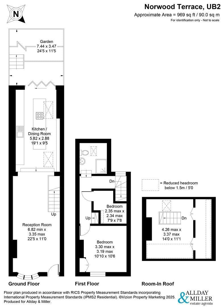
Beautifully presented and move-in ready, this immaculate two/three bedroom home offers a bright living space, modern kitchen, and stylish bathroom. Versatile third room ideal as a study or guest bedroom.
This delightful property features a welcoming reception room that seamlessly flows into a well appointed fitted kitchen boasting a breakfast bar, sky light window and bifold doors opening onto the rear.
On the first floor, you will find two spacious bedrooms, providing ample space for relaxation and rest. The family bathroom is conveniently located, ensuring ease of access for all.
Rising to the second floor features an additional double bedroom.
The property is further enhanced by a private rear garden, the perfect space outdoor dining and entertainment.
Location
Norwood Terrace a popular residential road in the heart of Southall with the high street being an just a short drive away with its variety of local shops, restaurants, cafes, takeaways and coffee shops. Southall Station being moments away with the Elizabeth line providing easy links to central London and the surrounding areas. For the motorist the M4 and M25 being within a close proximity. Highly regarded schools in the local area including Hambrough Primary School.





























