Spacious three/four bedroom Semi Detached home, recently redecorated and offered chain free, featuring two bathrooms and a rear extension providing generous living space. Benefits include off-street parking and a convenient location close to local amenities.
This semi detached house offers a wonderful opportunity for those looking to create their dream home.
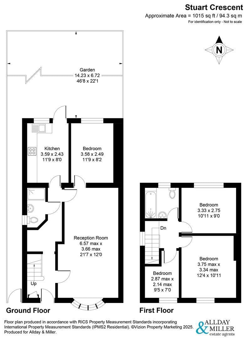
Upon entering, you are greeted by a reception room, a convenient downstairs bathroom, enhancing the practicality of the living space, a dining room and fitted kitchen completes this floor.
Rising to the first floor, you will find three comfortable bedrooms, complemented by a family bathroom.
The exterior of the property with a front drive offering off-street parking, a valuable asset in this bustling area. To the rear, a private garden awaits, predominantly laid to lawn.
Stuart Crescent ideally located near the Uxbridge road with its variety of local shops, supermarkets, cafes and coffee shops. A number of highly regarded schools close by including Rosedale College and Botwell House Catholic primary school. Hayes and Harlington station just a short drive away with the Elizabeth line giving easy links to central London and the surrounding. Several local bus routes also giving links to local amenities such as Brunel University, Stockley business park and Heathrow airport.

























