This stunning three double bedroom family home is located in the sought after Oak Farm, just moments from Highly Regarded Schools and walking distance from Hillingdon Train Station.
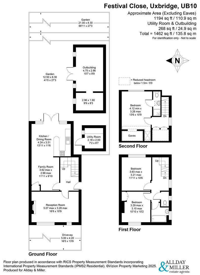
This charming house presents an ideal opportunity for families seeking a comfortable and spacious home. Upon entering, you are greeted by a bright and airy reception room that flows seamlessly into a dining area, the sleek fitted kitchen, complete with an island breakfast bar, is a delightful space and provides access to the rear.
The first floor accommodates two generously sized bedrooms, alongside a family bathroom that features a separate WC for added convenience.
Rising to the second floor, you will find a spacious double bedroom with an ensuite, providing a private retreat for relaxation.
Externally, the property boasts a front drive with a dedicated parking space. To the rear, a private garden awaits, offering the perfect outdoor space for dining and entertainment. Additionally, the garden features an outbuilding and utility store, providing ample storage solutions.
Festival Close perfectly located to a number of highly regarded schools including Oak Farm, Ryefield, St Bernadettes and Vyners Secondary School. For the commuters Hillingdon station is just a short drive away with the Metropolitan/Piccadilly line train station and the A40 with its links to London and the Home Counties. Uxbridge Town Centre with its vast array of shops, restaurants, gyms, a cinema and bars is approximately just over a mile away.































