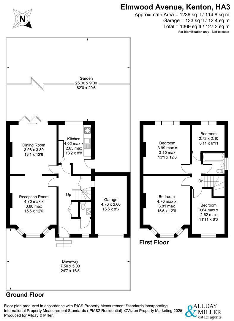
A charming four-bedroom semi-detached home on Elmwood Avenue, featuring a garage with own driveway, excellent potential to extend. Ideally located just a short walk from Kenton Station, this property offers both convenience and future growth for families and commuters alike.
This spacious and comfortable semi detached property in a peaceful, sought after road, comprises of a reception room, dining room, fitted kitchen and downstairs WC.
On the first floor, you will find four generously sized bedrooms. The bathroom is conveniently located to serve all bedrooms completing this floor.
Outside, the front drive offers off street parking and provides access to the garage. The rear garden is a delightful private retreat, predominantly laid to lawn, perfect for dining and entertainment.
The property also presents fantastic scope for extension, subject to planning permission. With options to expand at the side, rear, or into the loft, buyers have the opportunity to create additional living space tailored to their needs while adding long-term value.
Situated in the sough after Elmwood Avenue offers a superb combination of suburban appeal, strong transport connections, and excellent local amenities. The area is surrounded by a number of highly regarded schools including Elmgrove Primary School & Nursery and Harrow High School. For the commuters Kenton Station (Bakerloo Line & London Overground) and Northwick Park Station are very close and walkable from Elmwood Avenue. Harrow-on-the-Hill Station (Metropolitan & Chiltern Lines with good links to Jubilee Line) is also within a short distance.



















